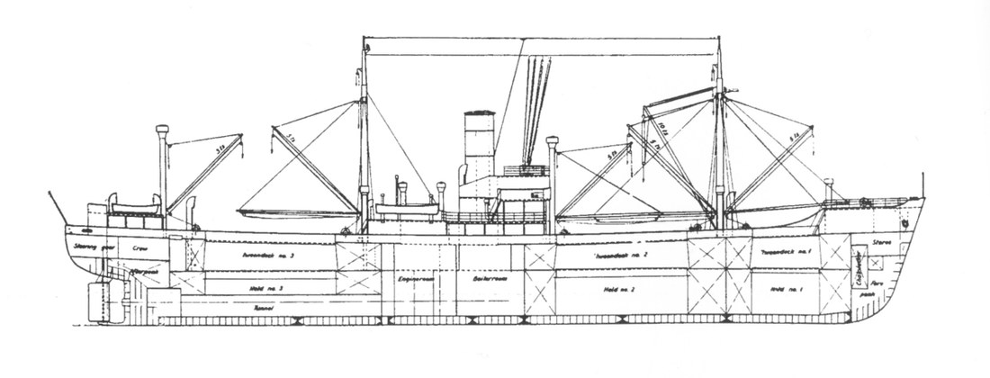
Hansa A-type
Også Tyskland hadde mangel på tonnasje, og i 1942 ble det etablert et ”Hauptausschiss Schiffbau” (HS) som skulle koordinere bruk av skipsbyggingkapasitet, sette opp prioriteringer mellom militær og sivile behov og legge opp mer effektiv bygging av standardskip. I juni 1942 fikk HS i oppdrag å skaffe 120 3000-tonnere (type A), 60 5000-tonnere (type B) og 20 9000-tonnere (type C).
Skipstypene ble prosjektert av kjente ingeniører, men ble langt på vei kompromisser mellom linje- og trampskip. Det skulle også vise seg at kvaliteten ikke ble av ”fredsstandard”, mye på grunn av materialmangel og tilgang på materialer og utstyr av lavere kvalitet.
Det viste seg også at skipene ble 30-40 prosent dyrere enn tilsvarende førkrigs skip. Hansa-A-skipene kom på rundt RM 1.7 millioner. Saken ble løst ved at de tyske rederiene skulle betale skipene kommersielle verdi, satt til 1 mill RM for denne typen.
Skipene ble tildelt interesserte rederier gjennom en komite under Verband Deutscher Reeder. Men skipene ble tildelt relativt sent i byggeprosessen, slik at rederiene hadde liten innflytelse på standard og utrustning. For A-typen ble Deutsche Werft i Hamburg ”vorbauende Werft”, altså ledende verft for typen og kunne veilede de andre verftene.
Vi ser at også danske, belgiske og spesielt nederlandske verft ble trukket inn i byggingen. Det eneste Hansa-skip fra norsk verft var en Hansa-B på 5000 tdw, Marianne fra BMV.
I tillegg ble det bestilt to tilsvarende, men lengre skip ved Gävle Varf i Sverige for regning av Deutsche Dampfschiffs Ges Hansa utenfor programmet. Begge disse kom under norsk flagg.
De 69 skip av typen som gjengitt i Gert Uwe Detlefsens verk om ”Die geschichte und die Schicksale deutscher Serienfrachter” fordeler seg slik:
Tyske verft 33 skip
Danske 4
Nederlandske 22
Belgiske 10
Torsten Hagneus gjør meg oppmerksom på en uoverensstemmelse her med Hans Jürgen Witthöfts bok ”Das Hansa-Bauprogramm” fra 1968 som oppgir at 52 skip var fullført per Tysklands kapitulasjon 7 mai 1945, fordelt slik:
Tyskland 35
Belgia 4
Nederland 11
Danmark 2
Dessuten ble flere fullført de første etterkrigsår.
A-typen var bygget som shelterdekker med tre lasterom, maskin midtskips og bakk. De var lagt opp for dampmaskineri, i stor grad dobbelt compound-maskiner med 4 sylindre. Noen få hadde dieselmaskineri, og av de svenskbygde hadde i hvert fall to ”quadruple expansion”-maskiner, altså firetrinns dampmaskiner. Skipene var ellers enkle i konstruksjon og utrustning, av naturlige grunner.
|
type |
tdw |
skrog i fot |
maskineri |
|
Hansa-A |
3200 |
301oa/280pp/44.4/24.9 |
compound dbl |
|
svenske |
3400 |
320oa/305pp/44.4/24.5 |
quadruple exp |
Hansa-A-typens rolle i norsk skipsfart spiller seg helst ut på to områder: Ved norsk disponering av to ex-tyske skip i en overgangsperiode i 1945-46, og i Østenfart på 50- og 60-tallet.
Interessant nok var den norske delegasjonene ved IARA-konferansen i mai 1946 som fordelte den tyske handelsflåten ikke interessert i denne type skip fordi de jevnt over var bygget av lavkvalitets Thomas-stål.
Skip som Produce, Admiral Hardy og Starlight skulle vise de norske fargene i Østen godt inn på 60-tallet. Den siste under norsk flagg var Dana av Haugesund (ex Produce), som først ble levert til østenkjøpere i Hong Kong i mai 1968.
|
navn |
rdw |
bygget |
norsk |
s norsk |
utgått |
|
Bragernes |
3200 |
43 Lübecker |
midl 45-46 |
|
46 USSR |
|
Solnes |
3200 |
44 Gusto |
midl 46-47 |
|
47 Egypt |
|
Admiral Hardy |
3120 |
44 Stettiner |
55 |
|
65 Liberia |
|
Anne Reed |
3150 |
44 Deutsche Werft |
51 |
|
56 Tyskland |
|
Produce |
3850 |
46 Gävle |
46 |
Dana |
68 HK |
|
Bris |
3750 |
46 Gävle |
46 |
Negobla |
68 HK |

